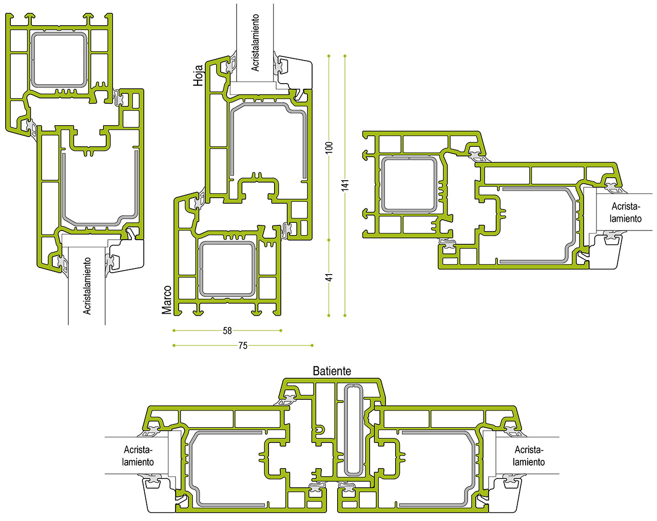
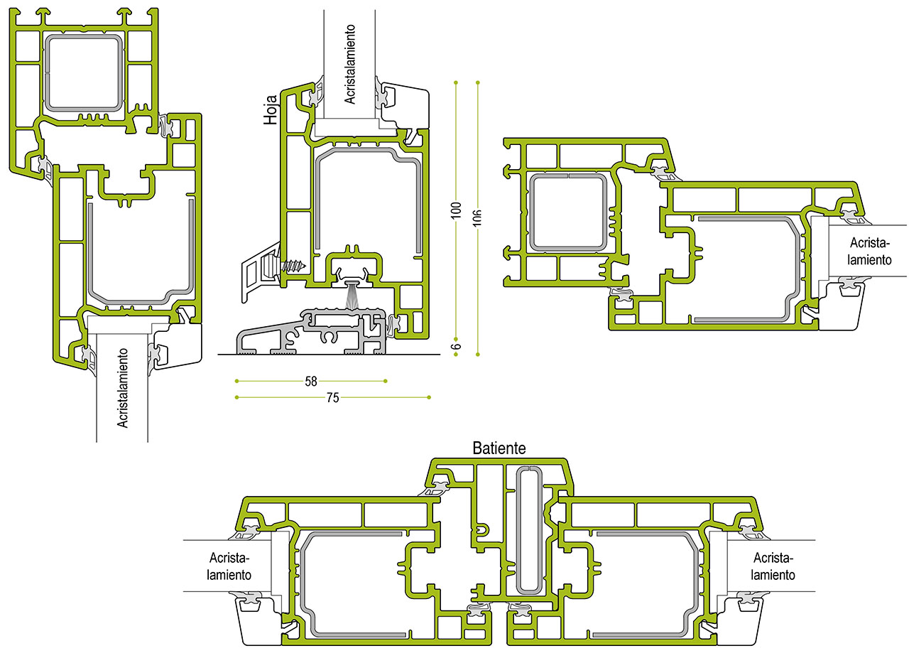
Línea Efficient :: Serie 58-100
CARACTERISTICAS GENERALES
El sistema Doble Contacto es el más complejo y comprende sistema practicable, oscilobatiente de doble posibilidad de abertura, banderola y proyectante en todas las series, todos estos sistemas pueden ser de 2 hojas.
Aceptan Paño Fijo (mediante poste) y Mosquitero.
REFUERZOS
Marco y hojas reforzados con refuerzo de hierro galvanizado.
ESTANQUEIDAD
Burlete de estanqueidad de EPDM exterior e interior en hoja y marco sellándolos perimetralmente.
COLORES
Contamos con la más amplia gama de colores en carpintería de PVC foliado del mercado, tonos madera, opacos y brillantes acompañan con elegancia y calidez sus proyectos.










